
Building Community through thoughtful development
This website is intended to share all pertinent information about the Alton Village Mews residential infill development proposal.
Unique site in the middle
of a heritage village.
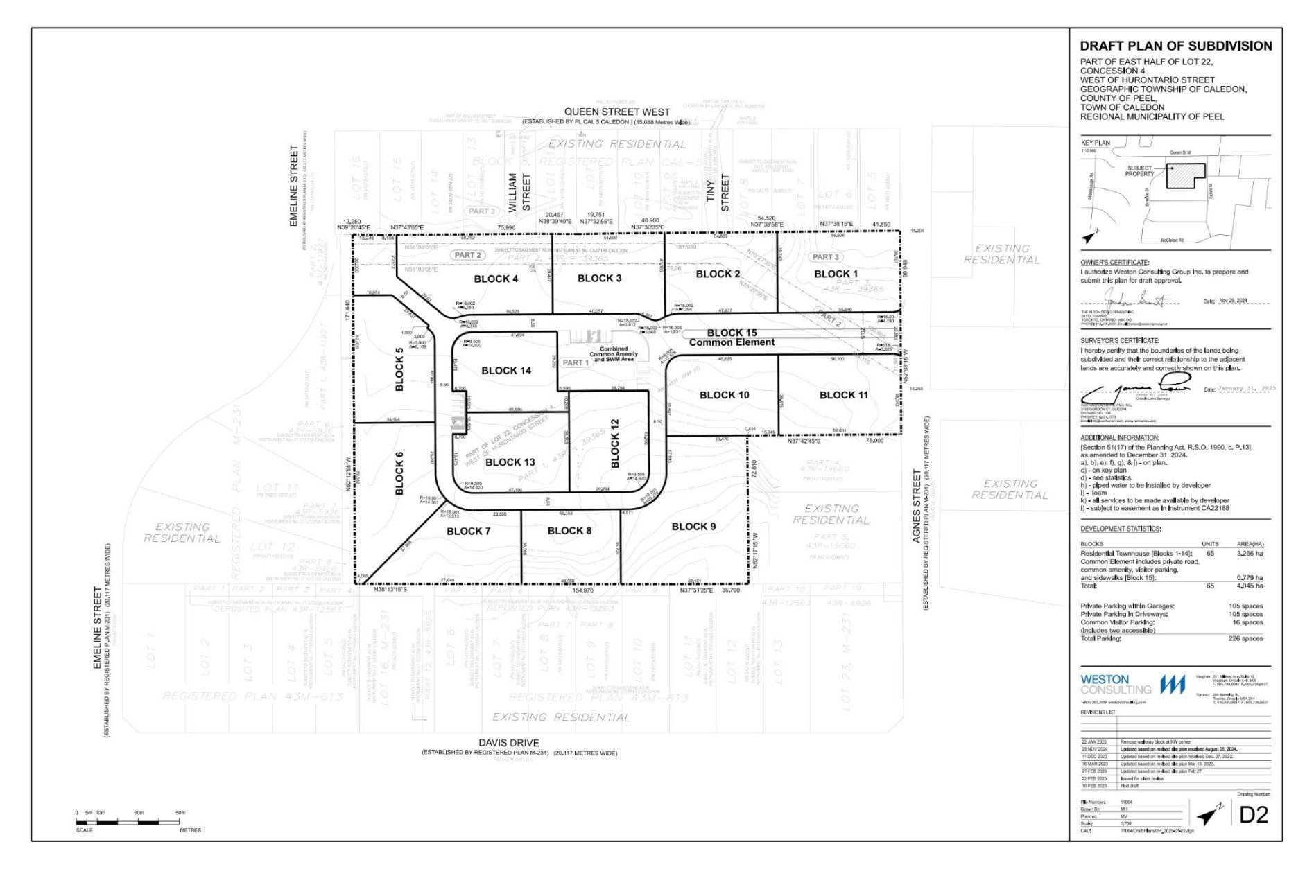
Alton Village Mews is proposed on a 10 acre (4 hectare) property between Agnes and Emeline Streets in the centre of the Village of Alton (Town of Caledon).

As a result of public pre-consultations, several changes were made to the initial plan, namely:
● a second vehicular entrance was added to Emeline Street,
● the Common Amenity area was enlarged
● the number of visitor parking spaces was increased from 14 to 16
● these changes resulted in the number of homes being reduced from 67 to 65 with 226 on-site parking spaces

The project is intended to fill a gap in the local housing supply.
Local resident feedback was generally against townhomes in favour of more single detached homes. However there is already a new subdivision in Alton with approx. 110 large detached homes available on 1/3+ acre lots with prices starting at $2.2 million. These are not selling. There is no new housing available in the village that is remotely attainable for most people.
Given Canada’s housing crisis, Seaton Group has decided to follow the broader public imperative of producing more housing at a more attainable price. Therefore the proposal continues to be to introduce a new housing form that is presently unavailable in Alton – namely townhomes.
Essential Facts
- current zoning is Rural Residential (RR) that would permit approx. 15 – 20 single family homes on ⅓ acre lots after allowing for roads and a stormwater management facility
- Draft Plan of Subdivision will create 14 residential blocks, a private road, guest parking and common amenity area

- Zoning By-law Amendment will allow townhomes and semi-detached units to be built within the blocks
- Concept plan proposes 4-5 units per block for a total of 65 units

- Proposed homes are a mix of bungalows, 1½ storey and 2-storey townhomes
- at 28’ to +36’ wide, all are much wider than typical 18’ to 20’ wide townhomes.
- Most have a main floor principal bedroom (50± units) and/or a two-car garage (41± units).
- Density works out to 6.5 units per acre (15 uph) which is the higher end of Low Density development. Medium-density housing is generally considered to be 10 to 25 upa (25 to 60 uph). It is NOT high density.
- 50% of the site is in open space/green space consisting of common amenity area, dispersal beds, naturalized areas and sodded areas
- the minimum rear yard setbacks to the adjacent properties is increased to 12m from the current Rural Residential (RR) zone standard of 9 m and most are ±15m.
- height in current zoning is modified to prohibit a third storey overlooking the existing Queen Street homes.

Planning Policy considerations
- Property is Designated and Zoned for residential development
- Town, Region and Provincial planning policy encourages wise use of land resources to make efficient use of existing infrastructure, promote a variety of housing types and forms and compatibility
- Proposed sewage solution complies with Provincial policies and regulations
Project Vision
“This project aims to manage growth and change in a positive manner to serve the needs of the community at large while respecting the cherished character of the village of Alton.” Jeremy Grant
The proposal is based on Four Pillars:
1. Attainable housing option
- Alton is virtually exclusively a single detached community with very few alternative housing choices.
- While some existing singles are modestly sized/priced, most, including all new homes recently built in Alton, are large singles on large lots priced well beyond the reach of most people (Osprey Mills starts at $2.2 million).
- Smaller units (proposed range is approx. 1,600 s.f.-2,400 s.f.) are less costly to build than larger homes
- Townhouses are even less costly to build than detached dwellings due to shared structures and less land and road frontage consumed.
- the lower cost will make their prices more attainable to a broader segment of the market
- A range of unit types: bungalow, bungalow-with-lofts and two-storey that will appeal to a range of people and ages and not just a single demographic
- Modestly sized rear private outdoor areas are desired by many people as they are less maintenance intensive, and are supplemented by perimeter meadow areas for privacy and common amenity area (“Common Green”)
2. Wise use of limited land resource
- As one of the only remaining significant parcels of vacant, undeveloped land in the village, it is important to use the property wisely
- A modest density of units, with the inclusion of usable open spaces equals a wise use of limited land resources and infrastructure
3. Compatibility with community through design
- A thorough inventory of historic properties in the village was undertaken to provide an understanding of the heritage character of the community and provide guidance/inspiration for the architecture, aimed at trying to be respectful of the village and maintain its unique sense of place
- Low level building heights combined with generous rear setbacks and tree planting will avoid loss or privacy for adjacent residents
- The amount of traffic generated is well within the capacity of local and regional roads.
- Improved pedestrian safety and connectivity in the neighbourhood will be created by way of additional sidewalks
- Front porches will encourage more street life and “eyes on the street”
- Low level street lighting is proposed to protect night skies

Agnes Street frontage. End units of Blocks 1 and 10 face Agnes St. to be consistent with existing homes across the street. Priority lot design, bungalow or 1½ storey.
Residential Vision for Alton Village
Discover the thoughtfully planned initiatives designed to enrich community living and connect neighbors.

Sustainable Living Spaces
Eco-Friendly Housing

Community-Focused Amenities
Shared Recreational Areas

Modern Infrastructure Design
Enhanced Road Networks

Future Growth Opportunities
Local Business Expansion

Alton Village Mews
Community Advocate
The team at Alton Village Mews was incredibly supportive in sharing development updates and engaging the community effectively.
Blog
Explore updates, news, and community stories about Alton Village Mews and the proposed residential development.
-
Engaging Alton Residents for a Better Tomorrow
This paragraph serves as an introduction to your blog post. Begin by discussing the primary…
-
Exploring the Details of Alton’s Growth Proposal
This paragraph serves as an introduction to your blog post. Begin by discussing the primary…


